The Final Phase
As of November 30, 2025
Total Raised: $5.39M
Total Project: $5.70M
Go to bottom of page to see photos for the Dining Hall build
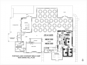
We’re thrilled to share that construction on our new Dining Hall is officially underway! After years of preparation and persistence, this long-awaited project has finally come to life.
Over the past seven years, our progress has been slowed by a variety of challenges — including funding setbacks, a global pandemic, rising costs, a devastating hailstorm, and most recently, delays with local building permits. But now, with permits secured, contracts signed, materials ordered, and construction crews on-site, the work has begun!
Thanks to the incredible generosity of our community, we have already surpassed our original campaign goal. However, with today’s costs, our total project budget has grown to $5.7 million, and we’ve launched the final phase of the Feeding 5,000 campaign to raise the remaining $1 million needed to complete the project and provide a small contingency.
Every gift brings us closer to welcoming campers and guests into a new space for meals, laughter, and connection.
We invite you to explore the tabs below to learn more about the journey, see the latest updates, and discover how you can help us finish strong!
Want to get involved?
Contact us at (231) 889-5911, or email marc@portagelake.org. You can donate online now by filling out the form or clicking here! Your support is endlessly appreciated!
Timeline of the Dining Hall Build
Dry wall, inside cedar trip, outside siding, and flooring getting started
Windows put in
Out side siding starting to get put in
Walls and frame being built
Frame Work going up as of 10/27
A view looking at the new Dining Hall towards the northeast as the structure begins to take form
Cement got filled in on Oct 9, and steel has been going up the week of Oct 13-17, with framing scheduled to start on Oct 20!
Steel begins to go up on the north wall of the new Dining Hall
The north wall of the new Dining Hall continues to take shape
As of 10/2:
As Of 9/23

Dining Hall Slideshow (scrolling during groundbreaking ceremony on 8/10/2025):
A video update from 2022:
Original Campaign Video
We Give, He Multiplies
In Mark 6:36, Jesus instructs his disciples when they are faced with a hungry crowd of 5,000 by saying “…’You give them something to eat.’” In the previous verse, the disciples wanted to send the people away so they could find food for themselves. But that’s not what Jesus wanted. He used the crowd of hungry people to show his providence and willingness to use whatever we have to bring to the table. Feeding 5,000 is the title of our campaign to build a new dining hall because God calls us to feed others not just with food but spiritually.
We began this campaign 7 years ago to build a new dining hall that will meet the needs of our expanding mission. Since then, camp has seen a lot of change. Despite these challenges, we are back on track! God is faithful, and the Portage Lake family has responded with tremendous giving.
Camp’s dining hall has served the ministry well since 1968, but it was never designed to be used year round. As our ministry has grown, our needs have outpaced what the building can provide. Campers and retreat-goers spend more time in the dining hall than any other single building at camp; it is here we eat, share stories, and have meaningful interactions. The new facility will be more efficient, versatile, and comfortable, allowing ministry to thrive for the next generation.
For almost 80 years, Portage Lake Covenant bible Camp has served youth and families through planned summer camps and retreats. Thousands of young campers have committed their lives to Christ for the first time at camp. Thousands more have dedicated themselves to lives of faith and significance. Generations of families have had opportunities to thrive and pursue God together here. over the past 30 years, camp has expanded to be a full-service, year-round camp and retreat center serving churches from all over the Midwest, as well as schools and organizations who come to enjoy the facilities and participate in leadership development and team-building programs. With modern facilities, a beautiful outdoor setting , and both high hand low challenge courses, Portage Lake Covenant Bible Camp now meets diverse, perennial needs in an ever-expanding mission field.
Our mission at Portage Lake Covenant Bible Camp is to “help people experience the transforming power of God at camp.” We invite campers and retreat-goers to step out of their daily routines and into a Christ-centered community built around Real FUN, Real FAITH, and Real FRIENDSHIP in an unforgettable setting. It is our desire that our guests be presented with the gospel of Jesus and leave camp hungry for a deeper spiritual walk and a life of significance. We seek to be hospitable and for all of our guests to feel comfortable, informed, and at ease so that God can do His work! Many call camp a “thin place” where the gap between heaven and earth disappears.
















































